Imagine 108

FLOREASCA/SUPERB SI LUMINOS/2 LOCURI PARCARE/VEDERE LIBERA

Aceasta proprietate nu mai este activa! Pentru oferte similare contactati agentul
ID: P10669 Bucuresti, Floreasca 142
3.000€ + TVA
Descriere
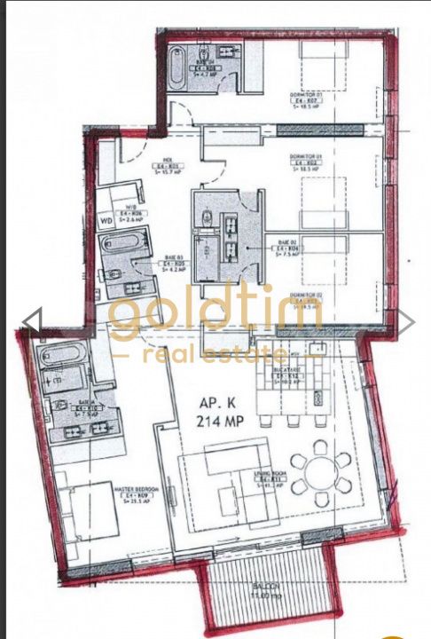
Va prezint un apartament excepțional pentru familie, situat în complexul Apartment One Floreasca Lake, una dintre cele mai apreciate zone rezidențiale din București.
Cu o suprafață generoasă de 214 mp, apartamentul dispune de 4 dormitoare, living amplu, bucătărie complet echipată și terasă spațioasă cu vedere spectaculoasă către lacul Herăstrău.
Poziționat într-o zonă extrem de liniștită, fără trafic auto, oferă un nivel rar de confort și intimitate, chiar în inima orașului.
Proprietatea beneficiază de 2 locuri de parcare și acces excelent către toate punctele de interes:
• Metrou – 5 minute de mers pe jos
• Promenada Mall – 8 minute
• Aeroport – 15 minute cu mașina
• Centru oraș – 15 minute de mers pe jos
Toate facilitățile zilnice (supermarket, restaurante, cafenele, școli internaționale) se află la maximum 5 minute de mers pe jos.
Un apartament rar pe piață – o oază de liniște, spațiu și eleganță, ideal pentru o familie sau pentru expați care își doresc calitate premium într-o locație de top.
Caracteristici
  • ID:P10669
  • Nr. camere:5
  • Nr. dormitoare:4
  • S. utila:214.00 mp
  • S. balcoane:10.00 mp
  • S. utila totala:224.00 mp
  • S. construita:250.00 mp
  • Comp.:Decomandat
  • Confort:Lux
  • Etaj:Etaj 4
  • Nr. bucatarii:1
  • Nr. bai:4
  • Nr. balcoane:1
  • Nr. parcari:2
  • An constructie:2020
  • Structura:Beton
  • Tip imobil:Bloc
  • Regim inaltime:P+5
  • Orientare:Sud-Vest
  • Clasa energetica:A
Specificatii
Curent
Apa
Canalizare
Gaz
Acces internet
Fibra optica
Centrala proprie
Incalzire pardoseala
Ventiloconvectoare
Izolatie Exterior
Izolatie Interior
Bloc izolat termic
Vopsea lavabila
Var
Faianta
Parchet
Gresie
Ferestre Aluminiu
Usa intrare Metal
Usa interior Celulare
Terasa
Bucatarie Mobilata
Bucatarie Utilata
Apometre
Contor caldura
Contor gaz
Mobilat Lux
Interfon
Videointerfon
Lift
Localizare
Claudiu Ghiurca
Agent
Esti interesat de aceasta proprietate ?
Proprietati similare
TOP De inchiriat Imagine 102345
APARTAMENT 4 CAMERE RENOVAT/ANSAMBLU SECURIZAT/BOXA/GARAJ/WASHINGTON/CAPITALE
Bucuresti, Dorobanti 3.200€ + TVA 3.400€ + TVA
4 camere 3 bai 180mp
TOP De inchiriat 4 CAMERE 182MP+TERASA 14MP+BALCON 10MP/LOC PARCARE/BOXA/WASHINGTON RESIDENCE
4 CAMERE 182MP+TERASA 14MP+BALCON 10MP/LOC PARCARE/BOXA/WASHINGTON RESIDENCE
Bucuresti, Capitale 3.200€
4 camere 2 bai 182mp
De inchiriat Imagine 112490
Penthouse spectaculos 280mp/Terasă 370mp/Vedere Pădurea Băneasa/Iancu Nicolae
Bucuresti, Iancu Nicolae 3.250€
4 camere 3 bai 280mp
De inchiriat Imagine 110381
Penthouse exclusivist/3 dormitoare/254 mp utili/Terasă panoramică/Lift Privat
Tunari, Vest 2.800€
4 camere 3 bai 158mp
De inchiriat Imagine 107474
Penthouse spectaculos 280mp/Terasă 370mp/Vedere Pădurea Băneasa/Iancu Nicolae
Bucuresti, Iancu Nicolae 3.250€
4 camere 3 bai 280mp
De inchiriat Imagine 105626
PRIMA CHIRIE/NOU/APARTAMENT PREMIUM/TERASA 200mp/PARCARE SUBTERANA/PRIMAVERII
Bucuresti, Primaverii 3.300€ + TVA
3 camere 3 bai 150mp