Imagine 99

RESEDINTA ICONICA/ULTRA LUX/PRIMAVERII

ID: P10042 Bucuresti, Primaverii 1
8.500.000€
Descriere
Reședință iconică ULTRA-LUX în Primăverii | 486 mp utili | Facilități premium

În inima uneia dintre cele mai exclusiviste zone ale Bucureștiului, Primăverii, această reședință remarcabilă redefinește standardele de lux rezidențial prin spațiu, intimitate și dotări excepționale.

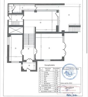
Proprietatea se desfășoară pe o suprafață utilă impresionantă de 486 mp, compartimentată în 9 camere generoase, concepute pentru un stil de viață rafinat, unde fiecare detaliu reflectă eleganță și funcționalitate.

Zona de zi este dominată de un living spectaculos cu șemineu, spațiu ideal pentru recepții private sau momente de relaxare într-un cadru sofisticat. Reședința este completată de facilități rare, dedicate unui stil de viață exclusivist:
La subsol regasim si un mic apartament pentru personal
• Sală de cinema privată, cu acustică și confort premium
• Zonă wellness cu saună
• Sală de fitness dedicată
• Armerie special amenajată
• Spălătorie separata
• Curte proprie, amenajată pentru intimitate și relaxare

Proprietatea oferă un nivel ridicat de discreție și securitate, fiind ideală pentru clienți care apreciază luxul autentic, poziționarea de elită și spațiile ample.

O proprietate rară, destinată celor care nu fac compromisuri și caută o reședință de referință în Primăverii.
Caracteristici
  • ID:P10042
  • Nr. camere:9
  • Nr. dormitoare:4
  • S. utila:468.00 mp
  • S. terase:535.00 mp
  • S. construita:647.00 mp
  • Nr. bucatarii:1
  • Nr. bai:7
  • Nr. balcoane:1
  • Nr. parcari:2
  • Nr. garaje:2
  • Nr. fronturi:1
  • An constructie:2017
  • Structura rezistenta:Caramida
  • Regim inaltime:S+D+P+2
  • Clasa energetica:A
Specificatii
Curent
Apa
Canalizare
Gaz
Curent trifazic
CATV
Telefon
Acces internet
Fibra optica
Centrala proprie
Incalzire pardoseala
Ventiloconvectoare
Bloc izolat termic
Vopsea lavabila
Faianta
Lambriu
Marmura
Parchet
Gresie
Ferestre Termopan
Usa intrare Metal
Usa interior Lemn
Pivnita
Crama
Spatiu depozitare
Dressing
WC Serviciu
Bucatarie Mobilata
Bucatarie Utilata
Mobilat Lux
Videointerfon
Sauna
Curte
Gradina
Uscatorie
Localizare
Alexandra Sebesanu
Founding Partner
Esti interesat de aceasta proprietate ?
Proprietati similare
0% comision De vanzare Imagine 36716
VILA INTERBELICA IMPRESIONANTA/ZONA DE REFERINTA/DOROBANTI/CAPITALE
Bucuresti, Capitale 9.200.000€
26 camere 1312mp