










































Goldtim Real Estate va prezinta spre vanzare o vila interbelica superba, situata in cea mai buna zona din Bucuresti, unde foarte rar apar imobile la vanzare.
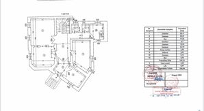
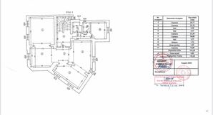
Vila se desfasoara pe doua etaje plus subsol si mansarda, conform releveelor., cu o suprafata utila de 1312mp si un teren de 510mp.
Pentru alte detalii sivizionari, nu ezitati sa ne contactati.