Imagine 99

VILA INDIVIDUALA/COMPLEX INCHIS/RENOVATA/BANEASA RESIDENTIAL/IANCU NICOLAE

ID: P9932 Bucuresti, Iancu Nicolae 1
900.000€ + TVA
Descriere
Vila eleganta, mobilata si utilata complet, situata langa padure, in ansamblul Baneasa Residential Park (complex Butterfly) din strada Erou Iancu Nicolae, Pipera - ce reprezinta alegerea ideala pentru o familie care doreste sa locuiasca in zona de nord, intr-o locatie selecta, inconjurata de natura.
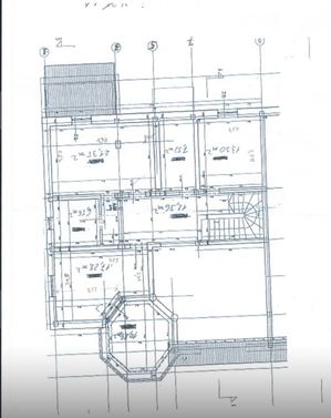
Casa are o pozitie foarte buna in complex, este in prezent locuita, complet utilata si mobilata, ce beneficiaza de un teren in suprafata de 650 mp, garaj si 4 locuri de parcare, plus locuri de parcare pentru vizitatori, fiind compartimentata la interior, dupa cum urmeaza:

Parter: Hol intrare, sala de fitness si sauna, dormitor de oaspeti, living vast si inalt 6 m (stil catedrala), birou, bucatarie; garaj
Etaj: dormitor matrimonial cu baie si dressing si alte 2 dormitoare deservite de o baie;
Mansarda: spatiu depozitare inalt (cu posibilitatea de extindere, pentru al 2-lea etaj).


Nr. camere
7
Suprafață
SU 270 m²
SC 160 m²
SD 375 m²
Suprafață Teren
650 mp
An
2001
Elegant, furnished and equipped villa, located near the forest, in the Baneasa Residential Park complex (Butterfly complex) on Erou Iancu Nicolae Street, Pipera - it represents an ideal choice for a family who wants to live in the northern area, in a select location, secure, and surrounded by nature.
The house has a very good position in the complex, is fully equipped and furnished, with a land area of 650 sq m, garage and 4 parking spaces, plus parking spaces for visitors, at the interior, being divided as follows:

Ground floor: Entrance hall, fitness room and sauna, guest bedroom, large and high of 6 m living room (cathedral style), office, kitchen; garage
Floor: master bedroom with bathroom and walk-in dressing room and 2 other bedrooms, and another bathroom;
Attic: high storage space (with the possibility of extension, for the 2nd floor).
Caracteristici
  • ID:P9932
  • Nr. camere:7
  • Nr. dormitoare:4
  • S. utila:270.00 mp
  • S. construita:375.00 mp
  • S. teren:650.00 mp
  • Nr. bucatarii:1
  • Nr. bai:3
  • Nr. parcari:4
  • Nr. garaje:1
  • An constructie:2001
  • Regim inaltime:P+1+M
  • Clasa energetica:A
Specificatii
Curent
Apa
Canalizare
Gaz
Curent trifazic
CATV
Telefon
Acces internet
Centrala proprie
Calorifere
Aer conditionat
Bloc izolat termic
Vopsea lavabila
Faianta
Parchet
Gresie
Ferestre Termopan
Usa intrare Metal
Usa interior Celulare
Spatiu depozitare
Dressing
WC Serviciu
Bucatarie Mobilata
Bucatarie Utilata
Complet mobilat
Interfon
Sauna
Curte
Gradina
Localizare
Alexandra Sebesanu
Founding Partner
Esti interesat de aceasta proprietate ?
Proprietati similare
TOP 0% comision De vanzare Imagine 47068
VILA IMPRESIONANTA SMART HOME TEHNOLOGIE ULTIMA GENERATIE/PISCINA/CORBEANCA/2024
Corbeanca, Central 780.000€ 1.200.000€
6 camere 5 bai 550mp
0% comision De vanzare Imagine 63073
VILA INDIVIDUALA SUPERBA/PIPERA/ZONA IANCU NICOLAE/COMPLEX DE 5 case/
Bucuresti, Pipera 769.000€ + TVA
6 camere 5 bai 180mp
0% comision De vanzare Imagine 58966
VILA INDIVIDUALA SUPERBA/PIPERA/ZONA IANCU NICOLAE/COMPLEX DE 5 case/
Bucuresti, Pipera 769.000€ + TVA
6 camere 5 bai 180mp
0% comision De vanzare Imagine 58609
VILA INDIVIDUALA/CARTIER REZIDENȚIAL/SISTEM FOTOVOLTAIC 10Kw/GARAJ/VEGETATIE
Bucuresti, Pipera 990.000€
5 camere 3 bai 183mp
0% comision De vanzare Imagine 57162
VILA DE EXCEPTIE/LUX/MOBILATA/UTILATA/CURTE/GARAJ/BAZILESCU
Bucuresti, Bucurestii Noi 990.000€
7 camere 6 bai 398mp
0% comision Rep. exclusiva De vanzare Imagine 56315
VILA DUPLEX/COMPLEX INCHIS SECURIZAT/BANEASA RESIDENTIAL/IANCU NICOLAE/ GARAJ
Bucuresti, Iancu Nicolae 770.000€
5 camere 4 bai 233mp