Imagine 108

Vilă nouă Pipera-Tunari Constructie/Complex privat/Ideală investiție

ID: P11891 Tunari, Sud-Est 1
200.000€
Descriere
Vilă individuală situată în zona Pipera – Tunari, într-un complex rezidențial închis, o zonă liniștită și foarte căutată atât pentru locuire, cât și pentru investiții.

Proprietatea oferă spații generoase și o construcție solidă, fiind disponibilă în faza de proiect sau la roșu, cu posibilitatea de personalizare a finisajelor și instalațiilor în funcție de preferințele viitorului proprietar.

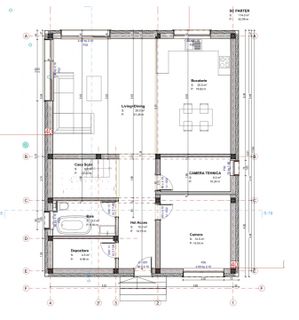
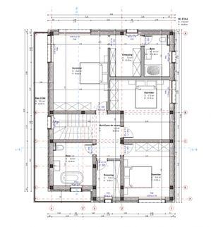
Detalii proprietate
• Suprafață utilă: 202 mp
• Suprafață construită: 249 mp
• Suprafață teren: 423 mp
• Vilă individuală în complex rezidențial privat

Stadiu construcție / Prețuri
• 200.000 € – la roșu
• 320.000 € – achiziție în faza de proiect, cu sistem de încălzire prin pompă de căldură
• Vânzare persoană fizică

Calitatea construcției

Construcția este realizată cu atenție la structură și rezistență:
• Fundație la 1,5 m adâncime și 1 m lățime
• Grinzi fundație cu 10 bare de fier Ø14, etrieri Ø10
• Structură consolidată cu etrieri din 70 în 70 cm
• Placa din zona livingului întărită cu 8 grinzi Ø16, etrieri Ø10 poziționați din 10 în 10 cm

La cerere se pot pune la dispoziție planurile complete ale construcției, inclusiv:
• plan arhitectural
• plan instalații electrice
• plan instalații sanitare
• detalii structurale

Potențial investițional

Datorită poziției și dimensiunii proprietății, vila se pretează foarte bine pentru închiriere pe termen lung, cu un randament estimat între:

💰 2.000 € – 2.700 € / lună



📞 Pentru detalii suplimentare, planuri complete sau programarea unei vizionări, vă stau la dispoziție.
Caracteristici
  • ID:P11891
  • Nr. camere:5
  • Nr. dormitoare:4
  • S. utila:202.00 mp
  • S. terase:17.00 mp
  • S. utila totala:219.00 mp
  • S. construita:249.00 mp
  • S. teren:423.00 mp
  • Nr. bucatarii:1
  • Nr. bai:3
  • Nr. balcoane:1
  • Nr. parcari:2
  • Nr. fronturi:1
  • An constructie:2026
  • Structura rezistenta:Caramida
  • Regim inaltime:P+1
  • Orientare:Sud-Est
  • Clasa energetica:A
Specificatii
Curent
Apa
Canalizare
Gaz
Acces internet
Fibra optica
Aer conditionat
Izolatie Exterior
Izolatie Interior
Bloc izolat termic
Vopsea lavabila
Var
Faianta
Parchet
Gresie
Ferestre Aluminiu
Usa interior Celulare
Spatiu depozitare
Dressing
WC Serviciu
Bucatarie Nemobilata
Bucatarie Neutilata
Apometre
Contor caldura
Nemobilat
Curte
Localizare
Claudiu Ghiurca
Agent
Esti interesat de aceasta proprietate ?