Imagine 108

VILĂ EXCLUSIVISTĂ - PISCINĂ INTERIOARĂ - CARTIER PRIVAT – PĂULEȘTI

ID: P12053 Paulestii Noi, Central 1
349.000€
Descriere
Există proprietăți care oferă doar spațiu… și există proprietăți care oferă un stil de viață complet.

Această vilă impresionantă situată în Păulești, într-un complex rezidențial privat cu acces securizat, se remarcă prin dimensiuni generoase, compartimentare inteligentă și un cadru de locuire rar întâlnit în zona rezidențială.

Proprietatea beneficiază de o suprafață utilă totală de aproximativ 380 mp, distribuită pe subsol, parter și etaj, la care se adaugă terase și balcoane generoase.

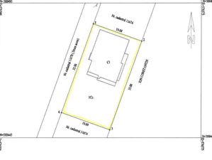
Casa este amplasată pe un teren bine proporționat, cu dimensiuni aproximative de 19 metri deschidere și 35 metri adâncime, oferind spațiu amplu pentru grădină, zone de relaxare și intimitate.

Subsol – spațiu tehnic și depozitare

Subsolul casei are o suprafață utilă de aproximativ 22.71 mp, fiind organizat eficient pentru funcționalitate.

Compartimentarea include:

• hol + casa scării – 10.56 mp
• depozit – 8.15 mp
• depozit suplimentar – 4 mp

Acest nivel este ideal pentru organizarea spațiilor tehnice, depozitare sau amenajarea unor zone suplimentare de utilitate pentru locuință.

Suprafața construită a subsolului este de 30.99 mp.

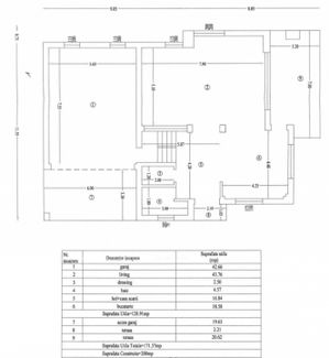
Parter – zona socială a casei

Parterul reprezintă zona principală de zi și oferă spații foarte generoase și bine conectate între ele.

Suprafața utilă a acestui nivel este de 128.91 mp, la care se adaugă terasă și acces către curte.

Compartimentarea include:

• living – 43.76 mp
• bucătărie – 13.71 mp
• baie – 4.57 mp
• hol + casa scării – 16.84 mp
• dressing – 3.71 mp
• terasă – 20.62 mp
• acces exterior – 2.21 mp

Livingul reprezintă punctul central al casei, cu o suprafață impresionantă de aproape 44 mp, oferind spațiu amplu pentru zona de relaxare și dining.

Datorită dimensiunilor generoase și ferestrelor largi, spațiul este luminos și aerisit, fiind perfect pentru momentele petrecute în familie sau pentru întâlniri cu prietenii.

Bucătăria, cu o suprafață de 13.71 mp, este separată eficient, dar rămâne în proximitatea zonei de zi, facilitând un flux natural al locuirii.

Accesul către terasa exterioară creează o extensie naturală a livingului, ideală pentru relaxare sau dining în aer liber.

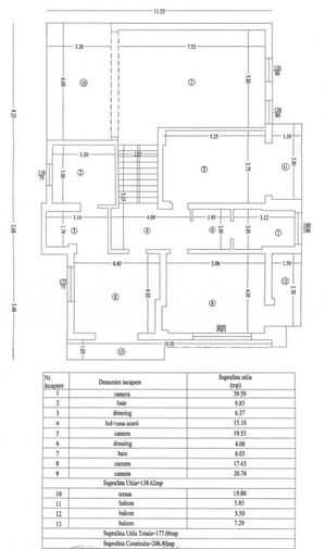
Etaj – zona de noapte

Etajul este dedicat zonei private și oferă camere extrem de spațioase, gândite pentru confort maxim.

Suprafața utilă a acestui nivel este de 138.62 mp.

Compartimentarea include:

• dormitor matrimonial – 39.59 mp
• dormitor – 17.90 mp
• dormitor – 20.74 mp
• dressing – 15.51 mp
• dressing – 6.37 mp
• baie – 4.00 mp
• baie – 17.43 mp
• hol + casa scării – 10.50 mp

Dormitorul matrimonial este impresionant, având aproape 40 mp, ceea ce permite amenajarea unei zone complete de relaxare.

În completare, proprietatea dispune de două dressinguri generoase și băi spațioase, oferind confort și intimitate pentru întreaga familie.

Etajul beneficiază și de:

• balcon – 5.50 mp
• balcon – 7.29 mp

Aceste spații oferă priveliști către zona verde a complexului și completează atmosfera liniștită a proprietății.

Terenul și amplasarea

Casa este amplasată pe un teren bine configurat, delimitat clar în planul cadastral.

Dimensiunile aproximative ale terenului sunt:

• 19.08 m front stradal
• 35 m adâncime

Această configurație permite amenajarea unei curți aerisite, cu spații verzi, zone de relaxare și locuri de parcare.

Complex rezidențial privat

Unul dintre cele mai mari avantaje ale acestei proprietăți este amplasarea într-un complex rezidențial privat, unde confortul și siguranța locatarilor sunt prioritare.

Complexul oferă o serie de facilități rare pentru o zonă rezidențială:

🏊 piscină
⚽ teren de fotbal
🎾 teren de tenis
🏀 teren de baschet
🛝 locuri de joacă pentru copii
🌳 spații verzi generoase
🔒 acces securizat

Atmosfera este una liniștită și exclusivistă, fiind ideală pentru familiile care caută un mediu sigur și relaxant.

Stil de viață

Această proprietate oferă mai mult decât o locuință — oferă un stil de viață complet, în care confortul, natura și facilitățile sportive fac parte din rutina zilnică.

Dimensiunile generoase ale casei, compartimentarea inteligentă și amplasarea într-un complex privat transformă această vilă într-o proprietate rară pe piață.
Caracteristici
  • ID:P12053
  • Nr. camere:8
  • Nr. dormitoare:3
  • S. utila:300.00 mp
  • S. terase:80.00 mp
  • S. construita:430.00 mp
  • S. teren:600.00 mp
  • Nr. bucatarii:1
  • Nr. bai:3
  • Nr. balcoane:4
  • Nr. parcari:2
  • Nr. garaje:1
  • An constructie:2020
  • Structura rezistenta:Beton
  • Regim inaltime:P+1
  • Clasa energetica:B
Specificatii
Curent
Apa
Canalizare
Gaz
Acces internet
Fibra optica
Centrala proprie
Incalzire pardoseala
Aer conditionat
Ventiloconvectoare
Localizare
Alex Balan
Esti interesat de aceasta proprietate ?
Proprietati similare
TOP De vanzare Imagine 81333
VILA IMPOZANTA P+3 /TEREN 800MP/ VEDERE PANORAMICA ASUPRA ORASULUI/ULTRACENTRAL
Piatra-Neamt, Ultracentral 315.000€
6 camere 4 bai 350mp
De vanzare Imagine 123336
VILA DE COLT/ MOBILATA SI UTILATA/ PARCARI
Bucuresti, Pipera 399.999€
4 camere 4 bai 161mp
De vanzare Imagine 120442
VILA INDIVIDUALA/ZONA CENTRALA BALOTESTI/SISTEM FOTOVOLTAIC/POMPA DE CĂLDURĂ
Balotesti, Central 329.000€
4 camere 3 bai 240mp
De vanzare Imagine 120371
VILĂ DE INVESTIȚIE-PIPERA/TUNARI/CHIRIAȘI ACTIVI/RANDAMENT IMEDIAT/FULL MOBILATA
Tunari, Sud-Est 390.000€
4 camere 3 bai 170mp
De vanzare Imagine 120220
VILĂ EXCLUSIVISTĂ/PISCINĂ INTERIOARĂ/CARTIER PRIVAT/ PĂULEȘTI
Paulestii Noi, Central 349.000€
8 camere 3 bai 300mp
De vanzare Imagine 119230
VILA INDIVIDUALA/ZONA CENTRALA BALOTESTI/SISTEM FOTOVOLTAIC/POMPA DE CĂLDURĂ
Balotesti, Central 315.000€
4 camere 3 bai 240mp