









Echipa Goldtim Real Estate va propune spre vanzare un apartament luminos si modern in zona Floreasca.
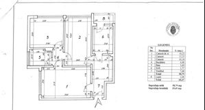
Apartamentul este compus din 3 camere, un dormitor luminos, o camera menita sa deserveasca ca birou sau dormitor, o baie utilata, o sufragerie ampla si repaxanta, cat si o bucatarie total utilata.
Apartamentul este recent mobilat la standarde moderne, se afla chiar la intrarea in parc, astfel accesul la relaxare si aer liber este facil.
Pentru mai multe detalii sau pentru stabilirea unei vizionari, asteptam cu drag sa ne contactati!
Echipa Goldtim Real Estate