

























*Va prezentam spre vanzare un superb apartament compus din 2 camere, situat la ultimul etaj al unui imobil de 9 etaje, finalizat in anul 2023.
Imobilul este un exemplu de rafinament combinat cu arta, iar apartamentele sunt gandite sa confere maximul de confort.
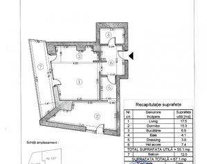
Apartamentul este compus din 2 camere spatioase, o bucatarie open space complet mobilata si utilata, o baie, dar si de un dressing incapator.
Incalzirea imobilului este prin pardoseala, iar sistemele de AC sunt cele mai moderne.
Data fiind pozitionarea excelenta, apartamentul dispune de vedere libera superba.
Apartamentul se vinde complet mobilat si utilat, exact ca in poze.
Exista posibilitatea achizitionarii unui loc de parcare atat in subteranul cladirii, cat si suprateran, dupa cum urmeaza:
Loc de parcare suprateran neacoperit: 13000 € + TVA.
Loc de parcare suprateran acoperit: 16000 € + TVA.
Loc de parcare subteran: 18000 € + TVA.
Loc de parcare subteran cu statie de incarcare electrica 22kW: 25500 € + TVA.
Pentru mai multe informatii si vizionari, va asteptam cu drag sa ne contactati!